定制服務流程
根據不同工況,提供定制服務
PLF large flow rate return line filter series
過濾精度高通油能力大納污量大
用/戶/可/根/據/實/際/工/況/定/制/
機械加工設備冶金
石化紡織
電子及制藥
主頁 > 產品板塊 > 油品凈化板塊 > 液壓油過濾器 > DRLF系列大流量回油過濾器 >
DRLF系列過濾器安裝在液壓系統回油管路處,用來濾除液中諸元件磨損的金屬粉末及橡膠質等,使流回油箱中的油液保持清潔。
| 應用范圍 | 廣泛應用于重型機械、礦山機械、冶金機械等液壓系統。 |
| 過濾介質 | 液壓油中水和乙二醇等 |
| 咨詢電話 | 400-0089-277 |
性能與特點
該過濾器的濾芯采用化纖過濾材質,具有過濾精度高、通油能力大、原始壓力損失小、納污量大等優點,并裝有壓差發訊器及旁通閥。當濾芯堵塞到進出口壓差為0.35MPa時,便發出幵關信號,此時應清洗或更換濾芯,如不能及時停機或無人來更換濾芯,裝在濾芯上部的旁通閥會自動幵啟,以保護系統。
技術參數
| 型號 | 通徑 (mm) |
公稱流量 (L/min) |
過濾精度 (μm) |
公稱壓力 (MPa) |
壓力損失 (MPa) |
旁通閥開啟壓力 (MPa) |
發訊裝置功率 (V/W) |
重量 (Kg) |
濾芯型號 | 濾芯數量 | |
|---|---|---|---|---|---|---|---|---|---|---|---|
| Initial | Max. | ||||||||||
| DRLF-A1300x*P | 100 | 1300 | 1 3 5 10 20 30 |
1.6 | 0.1 | 35 | 0.4 | 24V/48W 220V/50W |
140 | SFX-1300x* | 1 |
| DRLF-A2600x*P | 150 | 2600 | 202 | 2 | |||||||
| DRLF-A3900x*P | 200 | 3900 | 225 | 3 | |||||||
| DRLF-A6500x*P | 250 | 6500 | 266 | 5 | |||||||
| DRLF-A7800x*P | 250 | 7800 | 287 | 6 | |||||||
| DRLF-A9100x*P | 250 | 9100 | 308 | 7 | |||||||
注:*為過濾精度。若使用介質為水一乙醇,公稱流量2600L/min,過濾精度10μm,帶發訊器。則過濾器型號為DRLF·BH-A2600X10P,濾芯型號為 SFX·BH-1300X10
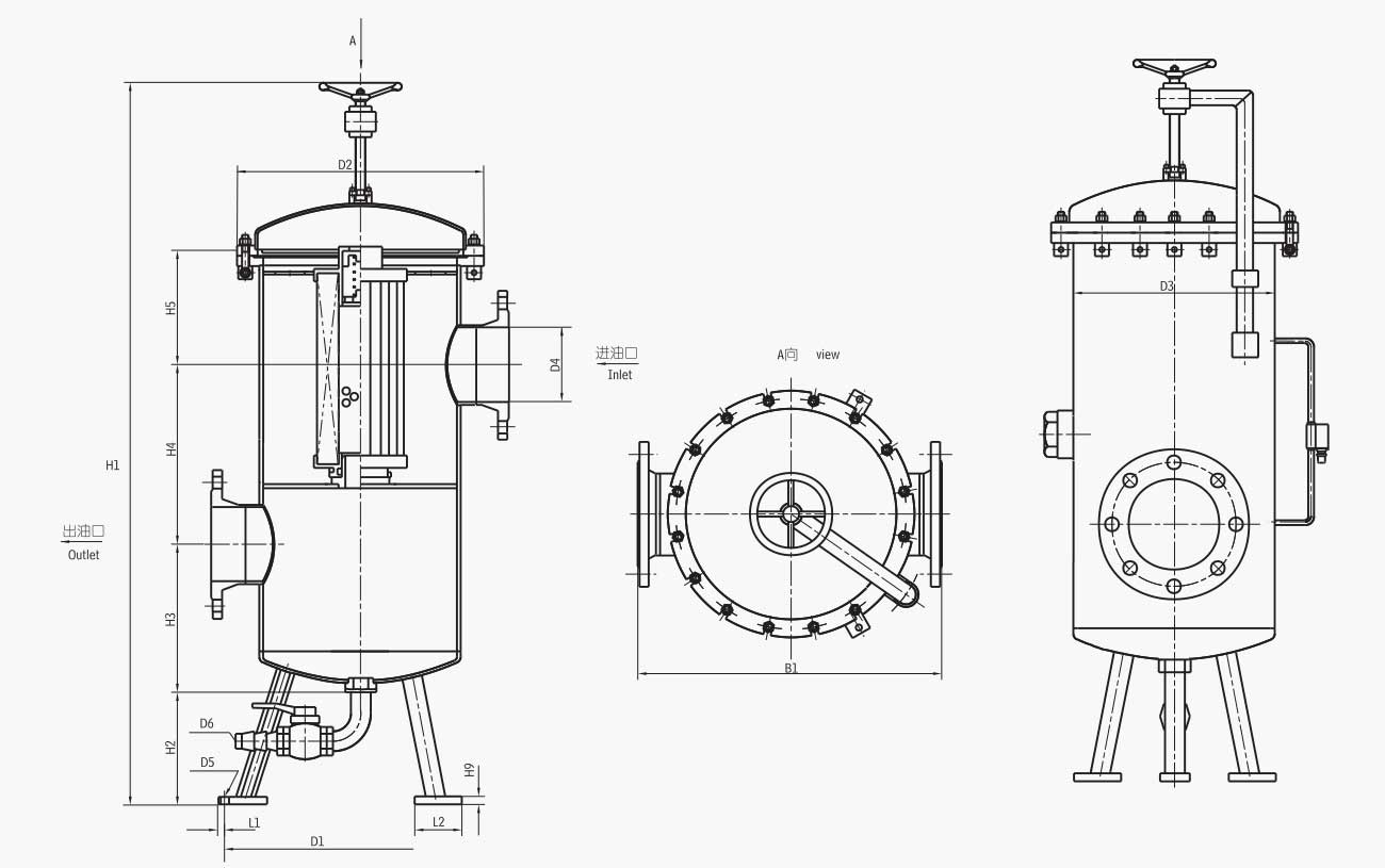
鏈接尺寸
| 型號 Model |
尺 寸 Size (mm) | 濾芯總數 | ||||||||||||||||
|---|---|---|---|---|---|---|---|---|---|---|---|---|---|---|---|---|---|---|
| B1 | D1 | D2 | D3 | D4 | D5 | D6 | H1 | H2 | H3 | H4 | H5 | H6 | H8 | H9 | L1 | L2 | ||
| DRLF-A1300x*P | 502 | 450 | 340 | 264 | 100 | 14 | 21 | 1400 | 250 | 230 | 365 | 230 | 150 | 200 | 12 | 20 | 80 | 1 |
| DRLF-A2600x*P | 602 | 555 | 500 | 412 | 150 | 18 | 21 | 1480 | 250 | 275 | 225 | 260 | 29 | 100 | 2 | |||
| DRLF-A3900x*P | 200 | 3 | ||||||||||||||||
| DRLF-A6500x*P | 754 | 600 | 610 | 516 | 250 | 23 | 1700 | 350 | 450 | 250 | 270 | 325 | 18 | 31 | 10 | 5 | ||
| DRLF-A7800x*P | 6 | |||||||||||||||||
| DRLF-A9100x*P | 7 | |||||||||||||||||
現場直擊
產品實拍
視頻
客戶案例
用途:液壓油過濾流量:1000t/h
用途:液壓油過濾流量:200t/h
用途:油過濾流量:100t/h